South Slope New Construction: The architect of record, Saverio Tarantino of TarLan Design-Build LLC has approved plans for a four story multifamily for 14th Street and three, three-story single family homes planned for 13th Street.
![]() |
| Big Lot, Big Developments. Demolition complete. This lot is 50 feet by 200 feet. View from 14th Street looking towards 13th Street |
![]() |
![]() |
| The "before" photo of the now demolished day care center. 333 14th Street will be developed as a multifamily with off street parking for some 44 automobiles. |
![]() |
| The beautiful brick building on the right belongs to Verizon. I think it's part of their network grid. The roof is covered in cell phone tower equipment. |
![]() |
| Robotic Parking Facilities to be located in the cellar under the 14th Street multifamily. |
![]() |
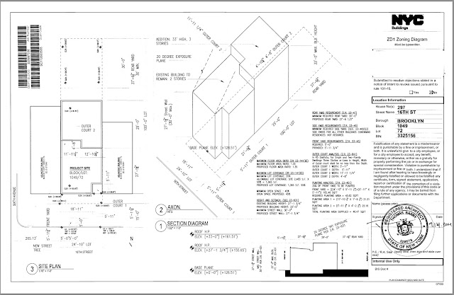
| IMBY always provides Plenty of Plan Porn for you are faithful readers. |
![]() |
| Neighborhood map. Site in Pink |




























































